- Консультация
- Анкетирование (заполнение брифа)
- схема сносимых/возводимых стен (при необходимости)
- 2 варианта планировочных решений с расстановкой мебели и указанием размеров
- 2Д/3д проекция помещения
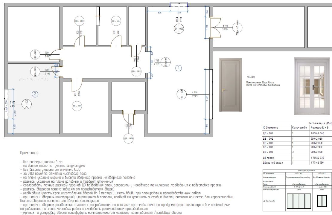
- план дверных проемов (при необходимости)
* при отсутствии замеров помещения (плана помещения) выезд на замер оплачивается отдельно от 5000 руб, в зависимости от метража